Se requiere rotar la pantalla en formato VERTICAL para visualizar la web.

MENÚCERRAR
1605 - Son Serra Son Serra de Marina, Santa Margalida Arquitectura y Arte Nøra Studio.

Arquitectura y Arte

La vivienda se encuentra ubicada en Son Serra de Marina, núcleo situado en la bahía de Alcúdia.

 

Se trata de una vivienda unifamiliar aislada de sótano, planta baja y dos pisos.

 

Su situación excepcional sólo la separa 150 metros del mar y 70 de un bosque de pinos.

Este entorno, junto a una baja densidad urbana, dota al emplazamiento de unas vistas privilegiadas que son determinantes para el desarrollo del proyecto.

 

Con la voluntad de poner en valor el paisaje, se forman una serie de pórticos que lo enmarcan acercándolo a la casa.

Las vigas y pilares a través de los cuales se observa la naturaleza acaban configurando un entramado que constituye la estructura portante del edificio. Una estructura que queda vista y es protagonista.

 

La casa emerge de la pendiente de la calle como un prisma abstracto, aunque no se entiendo como un volumen homogéneo sino como un marco tridimensional donde, además de las vistas, también se insertan los diferentes espacios de la vivienda.

 

La condición de malla se hace evidente por el retranqueo del plano de fachada, que se queda a la sombra.

Además, los volúmenes se apartan de forma distinta en cada planta consiguiendo que todos los espacios cuenten con un balcón o terraza propia.

Este hecho aporta calidad a cada una de las salas y ofrece una diversidad de puntos de vista desde donde observar el panorama.

La fachada es una proyección directa de la estructura.

 

En el sentido longitudinal, su ritmo se ve alterado por un cambio de cota en los forjados intermedios.

Este salto no sólo dinamiza el alzado, también acentúa la división interna de los diferentes ámbitos en los que se distribuye la casa, hecho que refuerza la imagen de contraste entre los pórticos y los habitáculos interiores.

 

Según el programa se pueden distinguir cinco zonas.

El sótano hace la función de garaje.

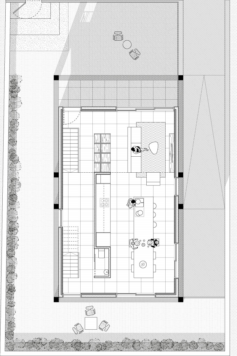
En planta baja están los espacios de día: cocina, comedor y sala de estar, conectada al recibidor.

La planta primera, a través del cambio de sección, se divide en dos zonas de habitaciones: una para dos dormitorios simples y la otra para el dormitorio principal.

 

Todos estos ámbitos se conectan a través de una escalera continua que ocupa la fachada sur.

Su recorrido provoca que la mirada se dirija hacia el extremo opuesto, permitiendo una comprensión conjunta de los diferentes espacios.

 

Una secuencia de prismas, vacíos y ocupados, resuelve la distribución.

Igual que el volumen total de la casa, también las diferentes zonas se pueden leer como cajas dentro de la estructura.

Así mismo, nuevas cajas más pequeñas formadas por armarios y baños se insertan en el interior de los cubos y separan las salas de las zonas de circulación y servicio. 

Localización:

Son Serra de Marina, Mallorca

 

Superfície:

208,21 m2 construidos.

 

Cliente:

Privado.

 

Constructor:

Dominique Sansó

 

Colaboradores:

Miquel Riera Marimon

Arquitecto técnico

Static

Cálculo estructural

 

Agradecimientos:

Bon Vivant Concept

Mobiliario y decoración

Tonia Fuster

Iluminación

 

Andreu Sastre

Fotografía

 

Período:

2017 - 2019

 

Fotografía:

Luís Díaz Díaz.

 

Nøra Studio

Siguiente proyecto

arrow-down
1602B - Joan Carles I 50 -1 Muro, Mallorca Arquitectura y Arte Nøra Studio.
1605 - Son Serra