Se requiere rotar la pantalla en formato VERTICAL para visualizar la web.

MENÚCERRAR
1807 - Cisterna Gràcia, Barcelona Arquitectura y Arte Nøra Studio.

Arquitectura y Arte

En el barrio de Gràcia de Barcelona se rehabilita el ático de un edificio para convertirlo en una vivienda.

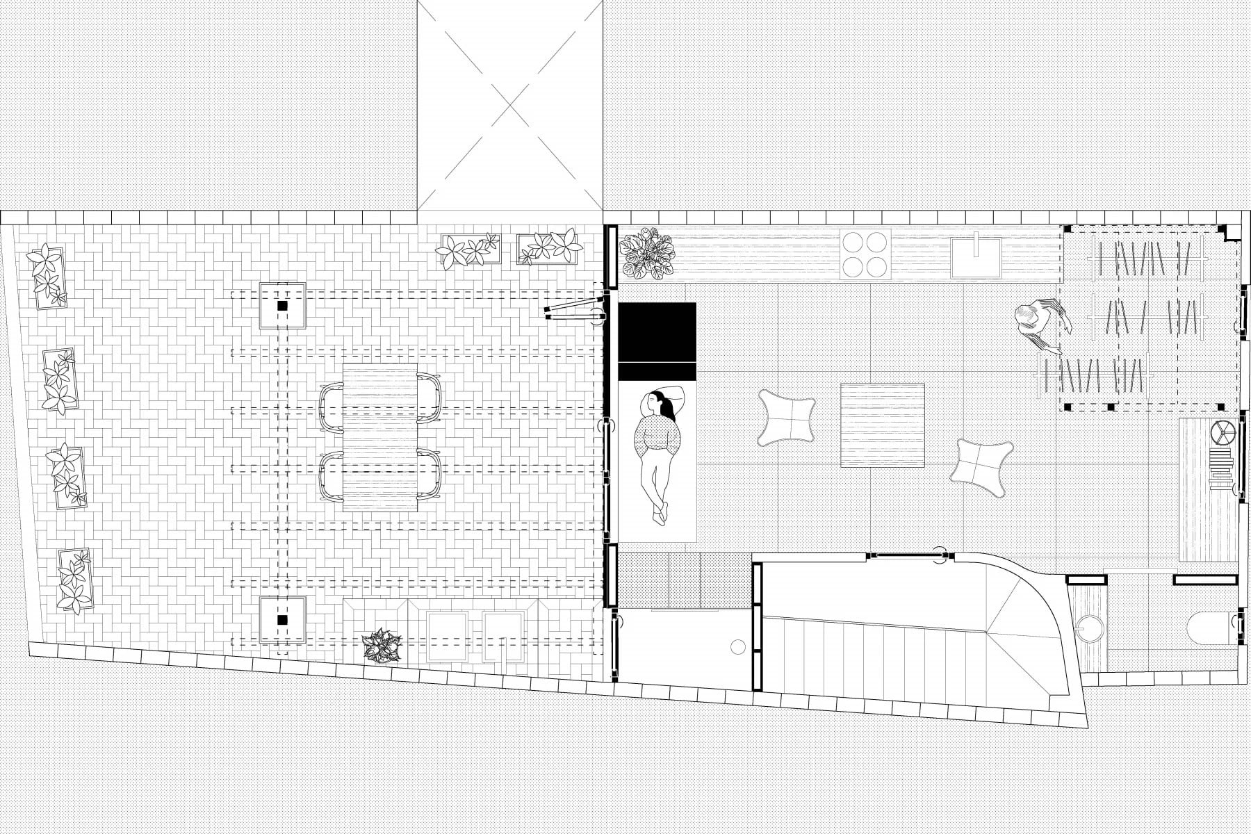
La planta tiene una terraza casi tan extensa como la superficie cerrada. Esta condición genera una fuerte polarización entre el interior y el exterior y da al piso un carácter dual. La dualidad entre las dos mitades emerge en dos aspectos: la materialidad y la transición entre dentro y fuera.

 

Dentro se conservan visualmente dos elementos que mantienen la identidad constructiva del edificio. El primero, las vigas de madera que soportan los tabiques conejeros con los que se genera la pendiente de la cubierta. El segundo, el muro de ladrillo que revela un antiguo crecimiento en altura del edificio. A estas preexistencias se añaden materiales neutros y lisos, el pavimento de hormigón y los tabiques ligeros que cierran la caja.

 

Como respuesta al nuevo pavimento interior se conserva el antiguo en el exterior, de baldosa cerámica en espiga. Como respuesta al antiguo techo interior, se construye una pérgola de madera y cañizo que da sombra a la terraza.

 

El exterior y el interior se conectan a través de puertas. En el lindar la transición se acentúa por un desnivel: la terraza se sitúa dos escalones por encima de la cota interior. Para salvar la altura del desnivel se coloca un banco de chapa que hace de escalón, así como de sofá.

La superficie interior de la vivienda es de 30m2. La imposibilidad de una distribución adecuada de estancias generosas da lugar a un único espacio total con dos pequeños apéndices, la ducha y el lavabo.

 

Anteriormente, este ático tenía la función de almacenar agua que servía al edificio. Como la nueva cisterna, la sala contiene una secuencia de funciones que fluyen a lo largo del día. Cocina, comedor, estar, estudio, vestidor o dormitorio.

 

Para este fin, se cuenta con el número mínimo de elementos fijos. Dentro, estos elementos son escalones que salvan el desnivel con la terraza y la ducha, así como una barra que contiene el mobiliario de la cocina. Todos ellos se sitúan en el perímetro, dejando libre el espacio central.

 

En el exterior, los únicos objetos fijos son la pérgola y un mueble de obra que también tiene instalación de agua. El resto del espacio se ocupa con muebles y accesorios que pueden aparecer y desaparecer aquí y allá según las necesidades del momento.

 

Para optimizar la superficie, la cama se eleva sobre una estructura metálica que permite usar el espacio de abajo como zona de almacenamiento.

 

El interior y la terraza son un continuo ocupado por las mesas y demás objetos que se mueven junto con las personas que habitan el piso.

Localización:

Barri de Gràcia, Barcelona.

 

Superfície:

29,4m2 interiors, 28m2 exteriors.

 

Cliente:

Privado.

 

Constructor:

Solcoasen SL.

 

Colaboradores:

-

 

Período:

2018 - 2019

 

Fotografía:

Gael del Rio.

Nøra Studio

Siguiente proyecto

arrow-down
1602 - Joan Carles I 50 Muro, Mallorca Arquitectura y Arte Nøra Studio.
1807 - Cisterna